Luovat suunnittelupalvelumme
Luonnossuunnittelu
Luonnossuunnittelussa määritellään hyvin pitkälle kaikki rakennuksen tulevaan käyttöön liittyvät ominaisuudet ja sen rakentamisesta syntyvät kustannukset.
Pääsuunnittelu
Voit toteuttaa pääsuunnittelun kauttamme. Yhteistyöverkostomme kautta voit hankkia myös talotekniikkasuunnittelun ja valaistussuunnittelun.
Laadukas sisustus- ja pihasuunnittelu viimeistelee kodin ja tekee siitä toiminnallisemman. Tutustu palveluihimme ja sovi aika ilmaiseen tarvekartoitukseen.
Sisustussuunnittelu
ja pihasuunnitelmat
Luovaa ja toiminnallista suunnittelua
ympäristö huomioiden
Luonnossuunnittelu
Suunnittelumme alkaa aina asiakkaan tarpeiden ja tontin mahdollisuuksien selvittämisestä. Luonnossuunnittelu on tärkein vaihe, jossa hahmotellaan tilan perusperiaatteet, mittasuhteet ja toiminnallisuus. Se toimii lähtökohtana koko suunnitteluprosessille, ohjaten rakennuksen ja ympäristön välistä vuorovaikutusta sekä tilan käytettävyyttä.
Hyvin toteutettu luonnos ottaa huomioon rakennuksen kontekstin, käyttäjäkokemuksen ja tilan funktionaaliset vaatimukset. Suunnittelun tässä vaiheessa testataan erilaisia konsepteja, tutkitaan materiaaleja ja määritetään, miten valo, muoto ja rakenne tukevat tilan tarkoitusta.


Pääsuunnittelu
Luonnossuunnittelun jälkeiset vaiheet, kuten pääpiirustukset ja työ- ja toteutuspiirustukset ovat oikeastaan vain luonnosvaiheessa asetetun vision toteuttamiseen tarvittavaa jatkosuunnittelua. Pääpiirustuksilla haetaan rakennuslupa ja työ- ja toteutuspiirustuksia tarvitaan rakennuksen laadukkaan lopputuloksen varmistamiseksi. Voit hankkia kohteellesi oman pääsuunnittelijan tai voit valita yhteistyökumppanimme.
Pääsuunnittelijan rooli on maankäyttö- ja rakennuslain määrittelemä suunnittelun laadunvarmennustehtävä. Käytännössä me pääsuunnittelijana varmistamme, että kaikki tarvittavat suunnitelmat, kuten rakenne- ja talotekniikkasuunnitelmat, tehdään ja että ne ovat yhteensopivia keskenään. Pääsuunnittelijan roolissa olemme myös yhteydessä viranomaisiin, hoidamme rakennuslupa-asioita ja tarvittavia neuvotteluja eri osapuolien välillä. Asiakkaan niin halutessa voimme myös pääsuunnittelijana auttaa urakkaneuvotteluissa ja vertailla urakkatarjouksia.


Sisustussuunnittelu
Sisustussuunnittelu on olennainen osa tilan kokonaisuutta, jossa yhdistyvät estetiikka, toiminnallisuus ja käyttäjäkokemus. Se ei ole vain materiaalien ja kalusteiden valintaa, vaan strateginen prosessi, joka ohjaa tilan käyttöä, tunnelmaa ja muotoa.
Hyvin suunniteltu sisustus tukee arkkitehtonista kokonaisuutta ja luo harmonian tilan eri elementtien välille. Materiaalivalinnat, valaistus ja värimaailma vaikuttavat tilan identiteettiin ja sen kykyyn mukautua käyttäjien tarpeisiin.
Sisustussuunnittelu yhdistää visuaalisen ilmeen ja käytännöllisyyden, luoden inspiroivia ja kestäviä ympäristöjä, jotka tukevat arjen sujuvuutta.


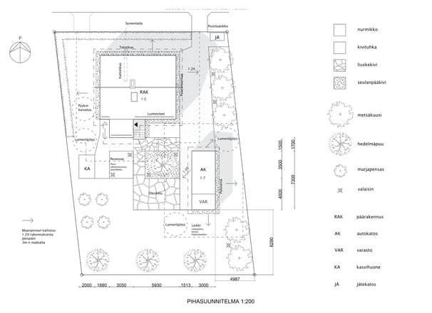
Pihasuunnittelu
Hyvin suunniteltu piha tukee rakennuksen funktionaalisuutta. Viherrakentamisen avulla voidaan ohjata kulkua ja määritellä eri käyttöalueita, kuten oleskelutiloja, leikkipaikkoja ja kulkuväyliä. Materiaalivalinnat – olipa kyse kivipinnoista, puisista rakenteista tai luonnonkasvillisuudesta – vaikuttavat paitsi visuaaliseen ilmeeseen myös piha-alueen käyttöön ja kestävyyteen.
Pihasuunnittelun lähtökohtana on tilan konteksti; Ilmasto, maaston muodot ja valon liike päivän eri vaiheissa määrittelevät, millaisia ratkaisuja kannattaa hyödyntää. Yhtä tärkeää on ymmärtää käyttäjien tarpeet – piha voi olla rauhoittava, inspiroiva tai toiminnallinen tila, joka tukee ihmisten arkielämää ja sosiaalista kanssakäymistä.
Pihan merkitys arkkitehtonisena elementtinä näkyy myös sen kyvyssä muuttaa tilan dynamiikkaa. Eri vuodenajat tuovat vaihtelua värimaailmaan ja tunnelmaan, jolloin hyvin suunniteltu piha elää ja mukautuu ympäristöönsä, tarjoten aina uuden näkökulman tilaan.
Harkittu pihasuunnittelu ei siis ole pelkkä lisäys rakennuksen ympärille, vaan keskeinen osa tilakokemusta, joka yhdistää käytännöllisyyden, kauneuden ja kestävyyden saumattomaksi kokonaisuudeksi.


Taide osana tilakokemusta
Arkkitehtoninen tila ei ole pelkästään fyysinen rakenne, vaan se on myös alusta kokemuksille ja vuorovaikutukselle. Taideteokset toimivat keskeisinä elementteinä tilakokonaisuutta.
Taideteos muokkaa tilan tunnelmaa, vahvistaa sen luonnetta ja tarjoaa käyttäjälle mahdollisuuden kokea ympäristön moniaistillisesti. Värien, muotojen ja materiaalien kautta teos voi luoda dynaamisen vuoropuhelun arkkitehtonisten elementtien kanssa, ohjaten katsojan katsetta ja liikettä tilassa.
Tilasuunnittelussa taide ei ole irrallinen koriste, vaan kiinteä osa tilan narratiivia. Maalaukset voivat rauhoittaa hektistä ympäristöä, luoda energisoivia kontrasteja tai korostaa tilan historiallista kontekstia.
Taideteoksilla voidaan myös vahvistaa tilan identiteettiä. Ne voivat tehdä julkisista tiloista tunnistettavia ja ainutlaatuisia, tarjoten käyttäjille kokemuksen, joka säilyy mielessä pitkään. Esimerkiksi suurikokoinen maalaus aulassa voi viestiä yrityksen arvomaailmaa, kun taas abstrakti seinätaideteos voi antaa tilalle modernin ja innovatiivisen luonteen.
Kun taidetta integroidaan tilaan harkiten, se tuo mukanaan uuden ulottuvuuden kokemukseen – yhdistäen muodon, materiaalin ja tilan narratiivin yhdeksi kokonaisuudeksi, joka puhuttelee ja inspiroi.


Varaa aika ilmaiseen tarvekartoitukseen
Rita Junes on aiemmin työskennellyt arkkitehtiyrittäjänä ja perustajaosakkaana Kide Arkkitehdeilla sekä ollut mukana avustavana suunnittelijana eri kokoisissa rakennushankkeissa. Hän on tehnyt myös sisustussuunnitelmia ja julkisivutaideteoksia.
Arkkitehti yo. Rita Junes on aiemmalta ammatiltaan viestinnän ja media-alan ammattilainen sekä yhteiskuntatieteiden maisteri. Hän on pitänyt useita taidenäyttelyitä Oulussa ja hänen töitään on myyty koteihin ja julkisiin tiloihin eri puolille Suomea.


Studio Rita Junes
Luovaa ja toiminnallista suunnittelua ympäristö huomioiden.
Oulu
rita@rjstudio.fi
+358 44 551 5520
© 2025. All rights reserved.
