Projektit
Runkojen rytmi -julkisivutaideteos
Runkojen rytmi -julkisivutaideteos on toteutettu puun runkoja kuvastavista, kolmeen eri ulkonevaan tasoon sijoitetuista tiililadonnoista, jota on valaistu hämärällä suojapellin alle tulevalla led-valolla. Tiilijulkisivusommitelma toistuu rakennuksen etelä- ja länsijulkisivuilla.
Julkisivutaideteos: Rita Junes
Rakennuksen arkkitehtisuunnittelu: LUO Arkkitehdit Oy
Rakentaja: Pajala yhtiöt Oy.


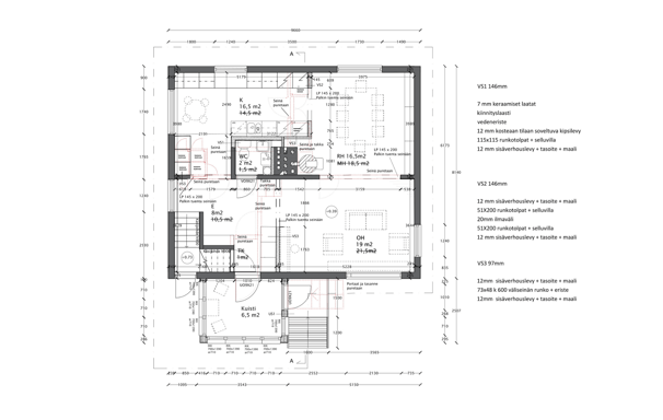
Muutossuunnitelma rintamamiestaloon


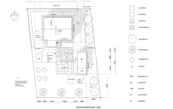
Pihasuunnitelma


Studio Rita Junes
Luovaa ja toiminnallista suunnittelua ympäristö huomioiden.
Oulu
rita@rjstudio.fi
+358 44 551 5520
© 2025. All rights reserved.
